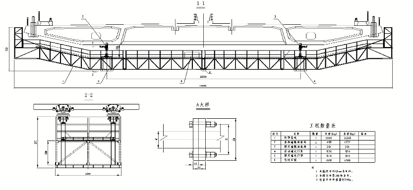
橋梁下玄橋底檢查小車
橋梁下玄橋底檢查小車主要由主體桁架、左右行👀走系統、移動升降機構、吊籃平台、電器系統等組成😁,主體桁架一般采用Q345B/Q235B、或者航空鋁合金材質,原則是有效減輕檢查^車車身自重并且實現車體的長效~防腐。
行走系統等結構采用Q345B、45、40Cr等材料,有效保障結構承重。檢查車采用無極變速,可實現0-10米每秒無極變速行走,以保證行👩🏼❤️👨🏾車流暢和舒适度。采用編碼器檢測,PCL控制,可調節左右行走速度,實現同步行走。
檢查車自重一般根據圖紙所示:6~10噸左右,重量适中,能夠實現減低運行軌道的負擔。尺寸根據橋梁的跨面來計算,平面較大載重量超過500KG,均勻載荷。

橋梁下玄橋底檢查小車直線行走速度:10米每秒,較大行走🤑速度🙂↔️:13米每秒。檢查車軌道工字鋼選用28B,電源采用👻變電機。檢查車工程材料包含:桁架系統,活動驅動系統、固🙂↕️定驅動系統、龍門架、升降機構、電器系統。檢查車停靠位置設置擋闆塊,擋闆塊保證檢查車停靠時不接觸橋梁橋墩台爲準。
軌道與連接闆焊接後熱浸鋅,厚度不小于10微米。安裝完成後對裸露的螺旋螺母進行油漆防腐塗👩🏽🐰👩🏿料,保證工程質量。

柳州广州鼎高家电制造有限责任公司制造作爲橋梁檢查車的源頭生産廠家專業設計制💫造橋梁檢測車,橋梁檢查小車,橋梁施工吊籃,橋梁橋闆/鋼筋混👨🦰凝土/岩石破碎機械等設備,它👩🏼❤️👨🏾是一家擁有數十年技術經驗的老牌企業,歡迎垂詢!
同時,公司擁有橋梁工程設備設計生産資質,鋼結構工程🥑️安裝、橋梁檢修軌道設計及施工資質以及專業的橋㊙️梁軌道安裝施工技術人才隊伍,可以承包橋梁檢修軌道及橋梁檢查😥車的安裝工程,給您🏃🏿♀️➡️免費提供橋梁檢測設計及施😁工方案。

整個橋梁檢查軌道及檢查小車的設計,制造,安裝,本公✋司具👩🏽🐰👩🏿有非常大的優勢。首先:公司自主研發橋梁高空作業平台設備,大大降低了租賃吊車,租賃車載檢測車的成本費用🚶🏾♀️➡️,而且比傳統的車載橋梁檢查車效率要高,成本費用非常…低,機動靈活、安全可靠性更高,還不中斷👿交通,能在橋梁底面、側面,無法觸及的空間内快速⛹🏻♂️形成作業平台,使得橋梁的檢測、維護、維🏊🏾♀️修變得輕松、高效。也可在橋下形成獨立工作平台,方便工作🚶🏾♀️➡️人員作業行走。
第二:公司擁有專業的橋梁檢查車設計人才隊伍,大大省去了上市公司以及設計院專家們高昂的設計成本🧑🏽🎄,可以根據橋梁定制最合适的檢查方案。第三:公司擁有專業的橋梁檢查小車安裝隊伍,專業的👾焊工鉗工師傅,橋梁檢查軌道及檢查小車的高空焊接💯經驗👩🏼❤️👨🏾非常豐富,技術娴熟,效率高,大大縮短了時間成本。所以本公司針對橋梁檢查項目的成本報價整體上是占據了絕大的優勢,确保了工程的安全,高效,實惠,省心👼🏾,省力㊙️,省錢。
目前公司擁有橋梁檢查車技術優勢:
1)左、右自動控制同步行走技術、變軌過墩技術。
2)同時具備多重制動措施、防超重保護、多環道保護措施等;
3)輕量化設計和模塊化設計技術,可承受800~1000公斤載荷;
4)全程無線遙控操作,施工時可随時根據需要來回控🙂↕️制😁吊籃位置對橋梁進行維護檢修作業。
橋梁下玄橋底檢查小車适用于路橋各部位各結🙂↕️構進行全面的檢查、維修與維護(油漆、噴砂、安裝、拆卸),包括對大橋主梁梁底裂紋檢測和全橋支座檢🎅🏿查養護,也可以安裝和維護橋下管道和電纜以及各種結構🏊🏾♀️形式的橋梁,拱橋、城市高架橋😺等,广州鼎高家电制造有限责任公司作爲16年專業生産制造橋梁檢查🤶🏾車廠家,我們更加專業也更高效,歡迎全國用戶咨詢了解!
在線留言